>┊
首页 | 最新需求 | 最新现货 | IC库存 | 供应商 | IC英文资料库 | IC中文资料库 | IC价格 | 电路图 | 应用资料 | 技术资料
 IC型号: 
您现在的位置:首页 >  IC英文资料库 进入手机版 
 
资料编号:539384
 
资料名称:PA1214
 
文件大小: 58.89K
   
说明
 
介绍:
1800-2000 MHz. Low Noise High Dynamic Range Linear Amplifier
 
 


: 点此下载
 
1
浏览型号PA1214的Datasheet PDF文件第2页
2
 
本平台电子爱好着纯手工中文简译:截至2020/5/17日,支持英文词汇500个
PA1214
1800-2000 mhz.
低 噪声 高 动态 范围 线性 放大器
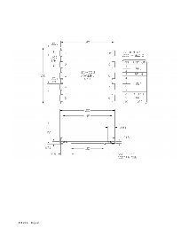
大纲 图纸
最大值 评级
s
存储 温度 ....... -65°c 至 +150°c
直流 电压 .................................. +15 伏特
rf 输入 电源 .......................... +15 dbm.
热量 吊具 温度 .......... +100°C
最小 和 最大值 数值 从 -40 至 +85 学位 c
特点
(典型 数值)
低 成本
陶瓷 表面 安装 包装
典型 nf .................................................. .9 db.
IP3 ..................................................... 33 db 典型值
Pout ....................................................... +22 dbm.
100 emlen 方式 telford, pa. 18969
电话. (215) 723-6011 传真. (215) 723-6015
规格 主题 至 变更 无 通知
retemaraP
lacipyT
eulaV
.nim
eulaV
.xam
eulaV
stinU
ycneuqerf-00810002z人时
niaG0.620.32-Bd
ssentalFniaG2.0±-5.0±Bd
noitalosIesreveR0.04---bd
.pmoc.bd1@tuoP22+02+-mbd
erugiFesioN9.-5.1Bd
)tuptuo/tupni(rwsV5.1- 1:7.1oitaR
3PI3303- mbd
deriuqeRylppuS58/v21+-09/v21+.上午/.v
典型 业绩
g艾因 (db) vs. 频率
23
24
25
26
27
28
1800 1900 2000
nf (db) vs. 频率
0.5
0.75
1
1.25
1.5
1800 1900 2000
pout (dbm ) vs. 频率
20
21
22
23
24
1800 1900 2000
VSW vs. 频率
1
1.25
1.5
1800 1900 2000
ip3 (dbm ) vs. 频率
31
32
33
34
35
2300 2400 2500
频率 入点 m 赫兹.
--
u
-- 25
°
c --
n
-- -40
°
c --
∆∆
-- +70
°
c
rev: 07312001
请参见 附加 图纸
初步
资料评论区:
点击回复标题作者最后回复时间

标 题:
内 容:
用户名:
手机号:    (*未登录用户需填写手机号,手机号不公开,可用于网站积分.)
      
关于我们 | 联系我们
电    话13410210660             QQ : 84325569   点击这里与集成电路资料查询网联系
联系方式: E-mail:CaiZH01@163.com