>┊
首页 | 最新需求 | 最新现货 | IC库存 | 供应商 | IC英文资料库 | IC中文资料库 | IC价格 | 电路图 | 应用资料 | 技术资料
 IC型号: 
您现在的位置:首页 >  IC英文资料库 进入手机版 
 
资料编号:590870
 
资料名称:ACTS573HMSR
 
文件大小: 45.44K
   
说明
 
介绍:
Radiation Hardened Octal Three-State Transparent Latch
 
 


: 点此下载
 
1
浏览型号ACTS573HMSR的Datasheet PDF文件第2页
2
浏览型号ACTS573HMSR的Datasheet PDF文件第3页
3
浏览型号ACTS573HMSR的Datasheet PDF文件第4页
4
 
本平台电子爱好着纯手工中文简译:截至2020/5/17日,支持英文词汇500个
1
注意事项: 这些 设备 是 敏感 至 静电 放电; 跟着 适当的 集成电路 搬运 程序.
1-888-intersil 或 321-724-7143 | 版权 © intersil 公司 1999
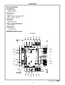
ACTS573MS
辐射 硬化 八进制
三态 透明 门闩
引出线
20 铅 陶瓷 双列直插式
密耳-标准-1835 指示符,
cdip2-t20, 铅 饰面 c
顶部 查看
20 铅 陶瓷 扁平包装
密耳-标准-1835 指示符,
cdfp4-f20, 铅 饰面 c
顶部 查看
11
12
13
14
15
16
17
18
20
19
10
9
8
7
6
5
4
3
2
1
oe
D0
D1
D2
D3
D4
D6
D5
D7
VCC
Q1
Q2
Q3
Q0
Q4
Q5
Q6
Q7
2
3
4
5
6
7
8
120
19
18
17
16
15
14
13
9
10
12
11
oe
D0
D1
D2
D3
D4
D6
D5
D7
VCC
Q1
Q2
Q3
Q0
Q4
Q5
Q6
Q7
特点
设备 qml qualified 入点 符合 与 密耳-prf-38535
详细 电气 和 筛选 要求 是 包含 入点
smd# 5962-96725 和 intersil’s qm 计划
1.25 微米 辐射 硬化 sos cmos
合计 剂量 . . . . . . . . . . . . . . . . . . . . . . . . . . . . . . . . >300k rad (si)
单独 事件 心烦 (seu) 免疫: &指示灯;1 x 10
-10
错误/有点/日
(典型值)
seu 让 阈值 . . . . . . . . . . . . . . . . . . . . . . . >100 mev-厘米
2
/毫克
剂量 费率 心烦 . . . . . . . . . . . . . . . . >10
11
rad (si)/s, 20ns 脉冲
剂量 费率 survivability . . . . . . . . . . . >10
12
rad (si)/s, 20ns 脉冲
闩锁 免费 下 任何 条件
军事 温度 范围. . . . . . . . . . . . . . . . . . -55
o
c 至 +125
o
c
Signi 电源 减少 比较 至 alsttl 逻辑
直流 操作 电压 范围 . . . . . . . . . . . . . . . . . . . . 4.5v 至 5.5v
输入 逻辑 级别
- vil = 0.8v 最大值
- vih = vcc/2 最小
输入 电流
1
µ
一个 在 体积, voh
快 传播 延迟 . . . . . . . . . . . . . . . . 18ns (最大值), 12ns (典型值)
描述
这 intersil acts573ms 是 一个 辐射 硬化 八进制 透明
门闩 与 一个 活动 低 输出 启用. 这 产出 是 透明 至
这 输入 当 这 门闩 启用 (
乐) 是 高. 当 这 门闩 去 低
这 数据 是 锁定. 这 输出 启用 控件 这 三态 产出.
当 这 输出 启用 针脚 (
oe) 是 高 这 输出 是 入点 一个 高
阻抗 州. 这 门闩 操作 是 独立 的 这 州 的
输出 启用.
这 acts573ms 利用 高级 cmos/sos 技术 至 实现
高-速度, cmos/sos 逻辑 家庭.
这 acts573ms 是 提供的 入点 一个 20 铅 陶瓷 扁平包装 (k suffix) 或
一个 陶瓷 双列直插式 包装 (d suffix).
january 1996
订购 信息
零件 号码 温度 范围 筛选 水平 包装
5962F9672501VRC -55
o
c 至 +125
o
c 密耳-prf-38535 类 v 20 铅 sbdip
5962F9672501VXC -55
o
c 至 +125
o
c 密耳-prf-38535 类 v 20 铅 陶瓷 扁平包装
acts573d/样品 25
o
c 样品 20 铅 sbdip
acts573k/样品 25
o
c 样品 20 铅 陶瓷 扁平包装
ACTS573HMSR 25
o
c 模具 模具
规格 号码
518892
文件 号码
4092
资料评论区:
点击回复标题作者最后回复时间

标 题:
内 容:
用户名:
手机号:    (*未登录用户需填写手机号,手机号不公开,可用于网站积分.)
      
关于我们 | 联系我们
电    话13410210660             QQ : 84325569   点击这里与集成电路资料查询网联系
联系方式: E-mail:CaiZH01@163.com